Logo A-Trait

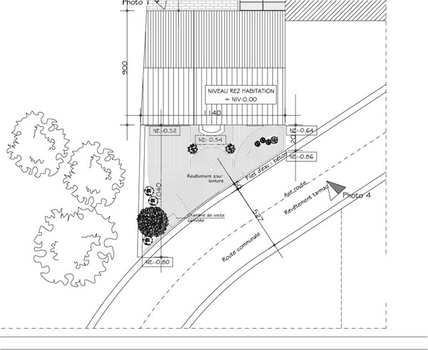
Aménagement extérieur D. - Hannut

Aménagement de la cour en façade